Gewerbe-/Werkstatt-/Büro- und Lagerflächen sowie Garagen und Freiflächen direkt an der B311 in St.Veit im Pongau

Das Neubauprojekt mit Werkstatt-/Büro- und/oder Lagerflächen befindet sich derzeit in Planung und die Bauarbeiten sollen im Frühjahr 2026 beginnen.
Es ist optimaler Verkehrsanschluss für Gewerbebetriebe durch die in nächster Nähe befindliche B311 gegeben.
Derzeit besteht noch die Möglichkeit zur Beteiligung an der Planung bzw. dem Einbringen von Sonderwünschen.
Die Miethöhe richtet sich nach dem tatsächlichen Flächenbedarf. Die Übergabe kann im Edelrohbau oder fertiggestellten Zustand erfolgen.
Die Umsetzung des Projektes erfolgt auf modernem Standard mit
E-Schnelladestationen, Photovoltaik, Aufzug und Gemeinschaftsparkplätzen.
Platzbedarf für Anlieferungen auch mit großen LKW’s ist gegeben.

Verfügbar sind:

Lager-/Garagenflächen, Raumhöhe ca. bis 4,00 Meter, ab ca. 12 – 46 m² Fläche (bei Bedarf auch mehr).


Für weitere Fragen melden Sie sich.

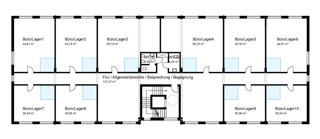
Büroflächen im 1. und 2. Obergeschoss samt Aufzug und Gemeinschaftstoiletten, ab ca. 30 m² – 560 m² Fläche.

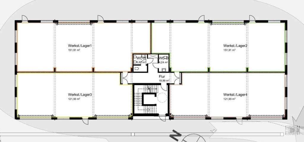
Werkstattflächen im Erdgeschoss mit ca. 4,00 Meter Raumhöhe, ab ca. 122 – 550 m² Fläche.

Profitieren Sie von flexiblen und maßgeschneiderten Lösungen.

Entdecken Sie unsere Lager: übersichtliche Pläne, attraktive Konditionen und bequeme Lage.

Zentral gelegen – unser Businesspark

Unser Businesspark bietet Ihnen bequemen Zugang, sichere Räumlichkeiten und eine optimale Verkehrsanbindung.

Flexible Gestaltung

Mit unserer flexibler Gestaltung während der Planungs- und Bauphase können die Räumlichkeiten auf Ihre Bedürfnisse abgestimmt werden.

Attraktive Preise auf Anfrage.

Wir informieren Sie transparent über unsere fairen Preise, die individuell auf Ihre Anforderungen angefragt werden können.

Individuell buchbare Stellplätze und Lager

Entfernungen

Direkt an der B311 gelegen und nur 14 km von der Autobahn A10 entfernt

GESUNDHEITKINDER & SCHULEN
Arzt 1.625 mSchule 1.550 m
Apotheke 2.225 mKindergarten 1.925 m
Krankenhaus 1.475 mHöhere Schule 1.550 m
NAHVERSORGUNGSONSTIGE
Supermarkt 1.850 mBank 1.850 m
Bäckerei 1.850 mGeldautomat 1.850 m
Einkaufszentrum 3.200 mPost 2.050 m
VERKEHRPolizei 1.950 m
Bus 300 m
Autobahnanschluss 14.000m
Bahnhof 1.775 m

Individuelle Preisanfragen

Erhalten Sie detaillierte Informationen zu verfügbaren Mietpreisen.

Verfügbare Flächen im Businesspark

Wir freuen uns auf Ihre Nachricht.
Bitte hinterlassen Sie uns Ihre Kontaktdaten und eine kurze Beschreibung Ihres Anliegens. Wir setzen uns zeitnah mit Ihnen in Verbindung.